100) ? false : true; navIsShown = (window.pageYOffset > heroHeight) ? true : false; triggerTransitions = window.pageYOffset > (heroHeight / 2) ? true : false; if (navIsOpen && !atTop && !navIsShown) navIsOpen = false; ">
Toggle Navigation
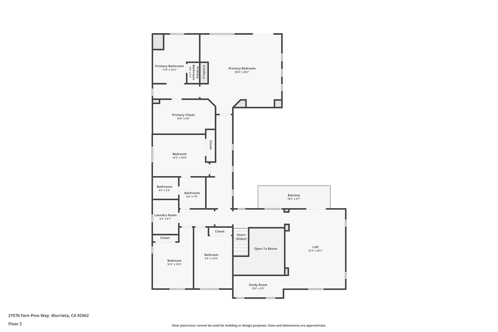
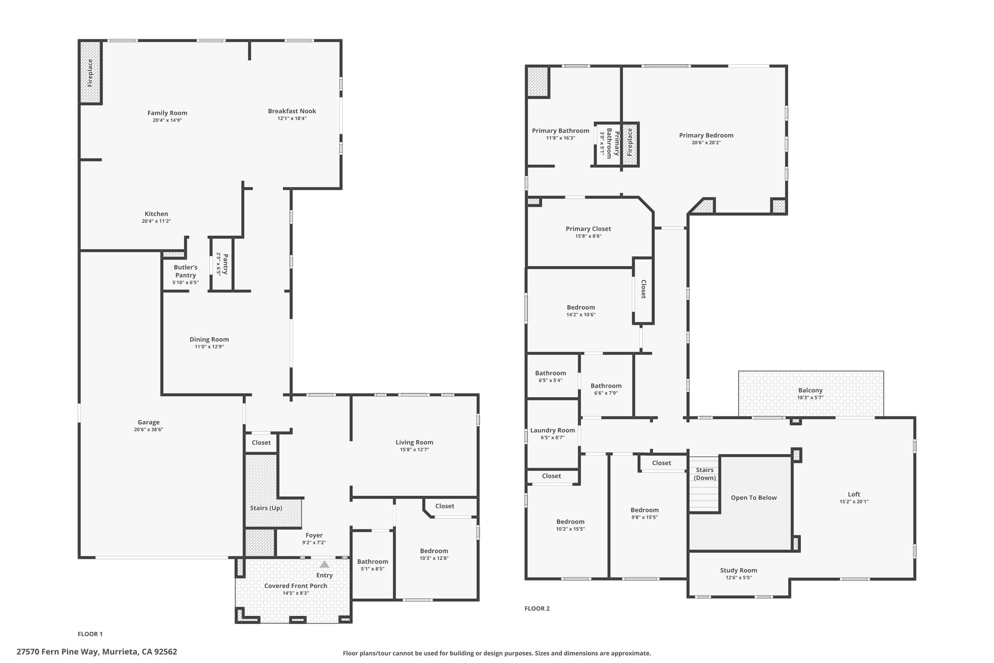
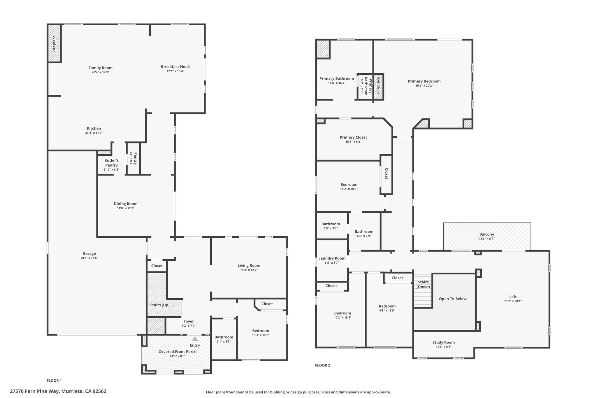
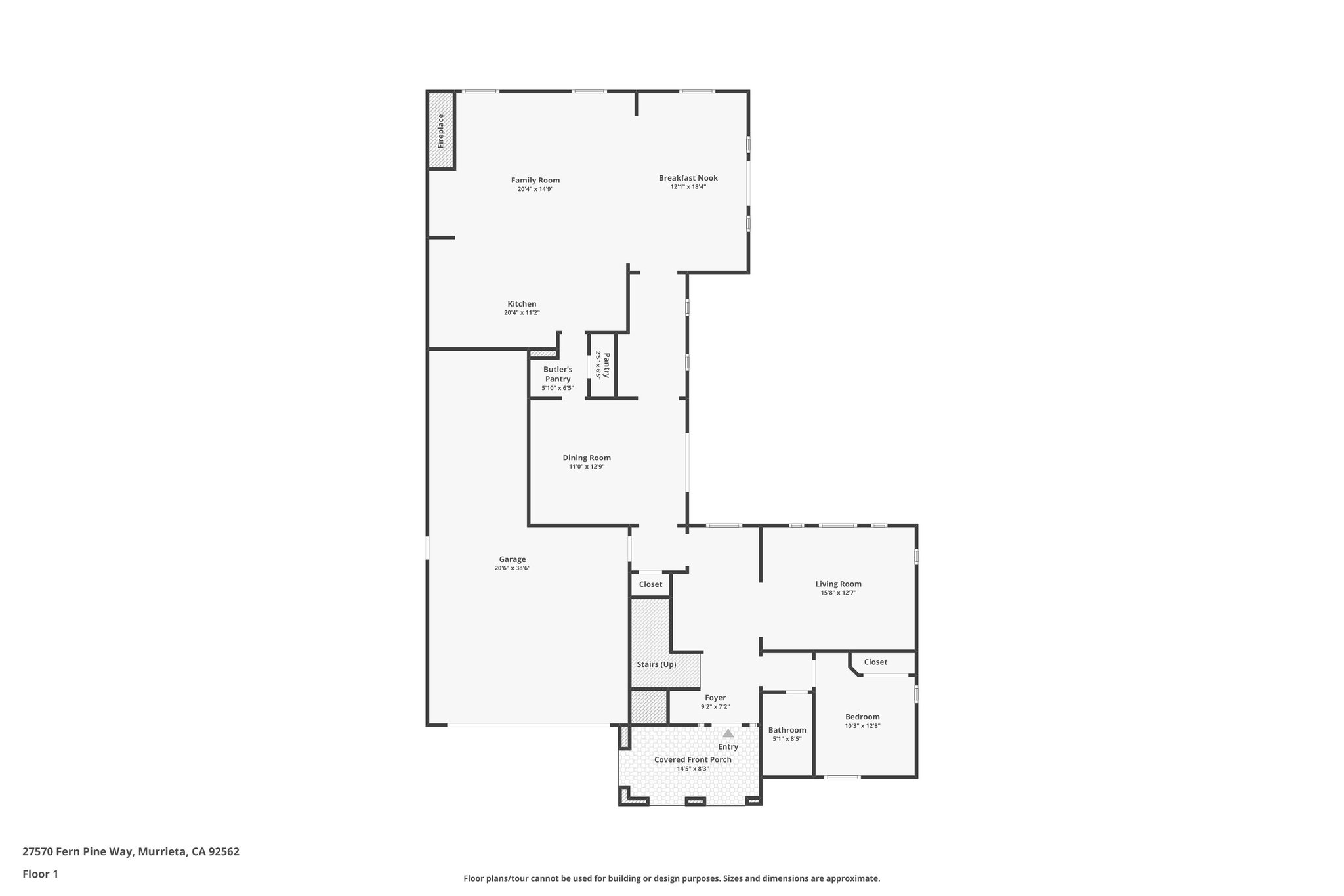
27570 Fern Pine Way, Murrieta, CA 92562
Images
Videos
Floor Plans
3D Tour
Map
View Gallery
3D Tour
Slideshow
Photo Grid
Hide
Previous
Next
27570 Fern Pine Way
Murrieta, CA 92562
Images
Show more
Slideshow
Photo Grid
Hide
Previous
Next
Videos
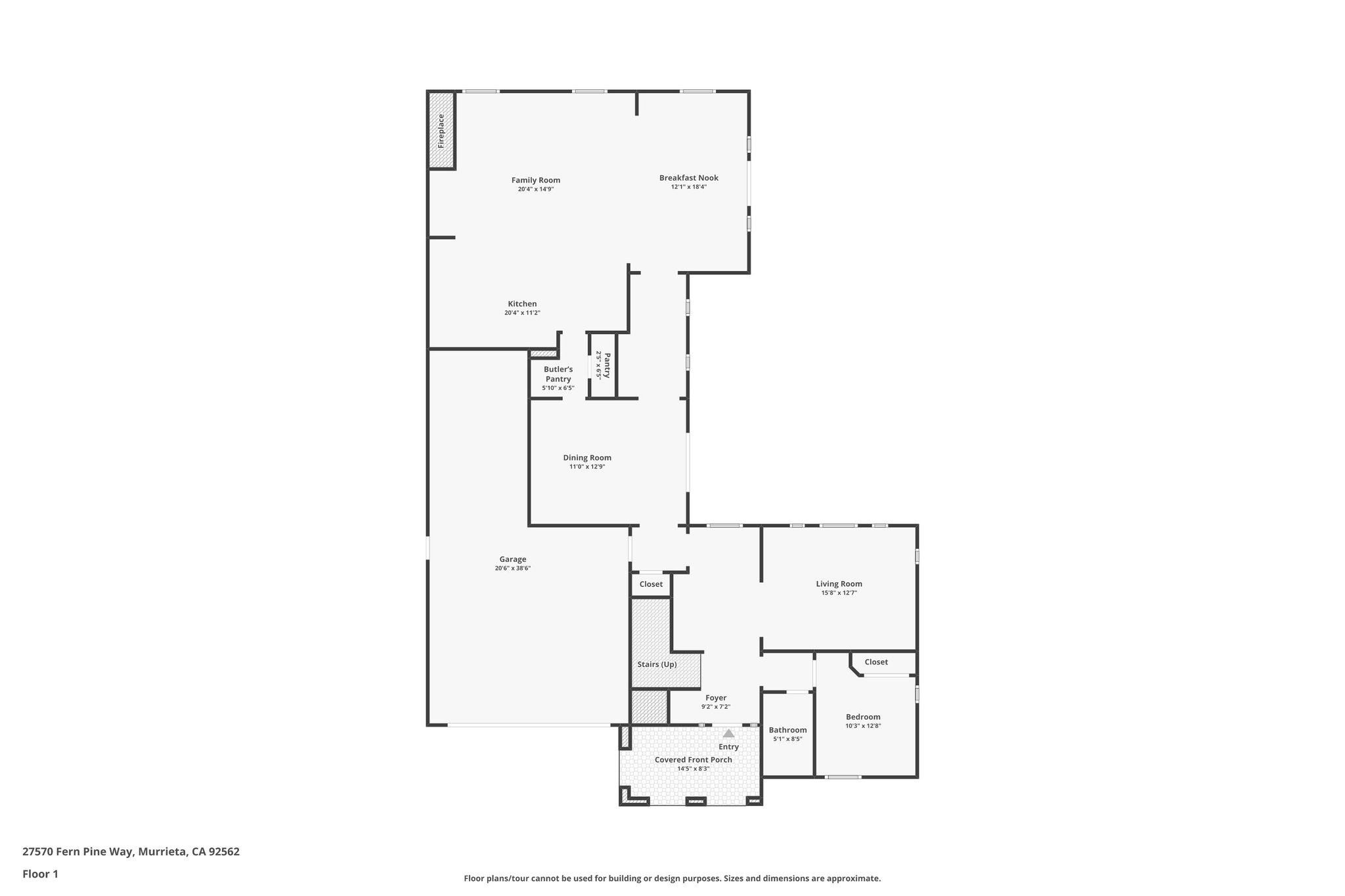
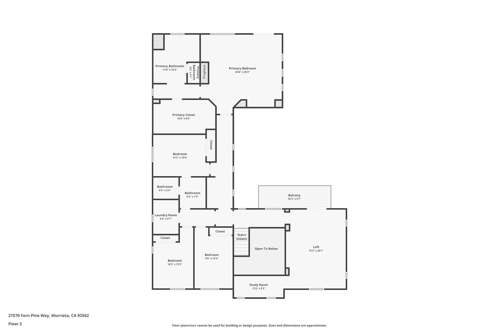
Floor Plans
Slideshow
Photo Grid
Hide
Previous
Next
3D Tour